Abstract
The design of steel beam-column end-plate bolted connections is becoming increasingly popular owing to its simplicity of production. This requires knowledge of the full nonlinear resisting moment–rotation (M–Φ) behavior of the joint. To investigate the impact of various geometrical factors on the overall behavior of the connection, this work provides a three-dimensional finite element model (FEM) utilizing ABAQUS software. The suggested model accounts for the pretension force on the bolts, material and geometrical deviations from linearity, and the proximity of surfaces that are adjacent. The numerical model’s ability to simulate and process both the total and specific behavior of varieties of end-plate steel riveted connections is confirmed by calibrating the finite element findings with experimentally disclosed outcomes, which are reviewed in this study. The ultimate behavior was then investigated through a parametric study using the verified FEM with variations in the bolt pretension load, yield strength of the sections, and yield stress of the bolt considering the M–Φ curve. The results of the parametric study showed that as the bolt pretension load and yield stress of the column, beam, and plate materials increased, so did the connection’s moment ability. The yield tension of the bolts, however, had only a minor effect on the connection’s moment capacity.
1 Introduction
Several research studies have been published related to the finite element analysis (FEA) of steel connections to simulate and investigate the behavior of such connections. The rationale behind this is that it is believed to have advantages over fully experimental testing and maintaining good connection actions in terms of time and cost savings. Some of these numerical models were given in previous studies [1–5]. All the aforementioned researchers modeled and simulated the behavior of steel end-plate connections via FEA to study and analyze the behavior of these connections using various FEA software packages such as ABAQUS and ANSYS. In addition, the numerical results were compared and validated using experimental results.
Numerous studies have adopted analytical and experimental research on end-plate steel connections to develop a reliable approach for predicting the rotational attitude of the connection under monotonic and cyclic stresses. To calculate the initial rotational stiffness of semi-rigid joints, Dabaon [6] proposed a fundamental method based on Euro Code 3 [7]. In a review study, Dabaon [8] defined the grouping of beam-to-column junctions. The researcher conducted the composite joint study after the addition of everything. A novel exponential model was created by Mohamadi-Shoore and Mofid [9] to estimate the regular M-curves of bolted end-plate connections.
Shi et al. [10] introduced a recent theoretical approach to evaluate the moment–rotation (M–Φ) relation for reinforced and lengthened beam-column end-plate connections. The end-plate connection is split into many components, which include the end-plate, panel area, bolt, or column flange, based on a particular understanding of the rotation of the end-plate connection. The analysis encompasses the whole loading–deformation operation of each segment, hence allowing for the acquisition of the loading–deformation procedure for every connection by the superimposition of the behavior of every segment. Five joint tests were conducted to verify the proposed analytical approach. It was concluded that this analytical approach can precisely determine the M–Φ curve, initial rotational stiffness, and rotational behavior of end-plate connections in comparison with the test data. Additionally, it has the ability to examine any benefit to the rotational deformation of the joint, including twisting deformation of the end-plate and column flange, bolt extension, and shear deformation of the panel zone.
The experimental findings of eight segments of steel-bolted connections beam-to-beam and beam-to-column with flush or extended end-plates were given by Abidelah et al. [11]. Fifty percent of the connections have end-plates that have been reinforced with stiffeners in the extended sections. The study used a column with low resistance to investigate the interplay of failure mechanisms in both the compression and tension zones. The analysis focused on evaluating the global M–Φ curves and the concurrent development of tension forces in the bolts. The primary metrics that were observed were failure mechanisms, stiffness, resistance development, and rotation capacity. A comprehensive analysis was performed to compare the experimental and analytical findings obtained from the component method of Eurocode 3. The objective was to assess the precision of the analytical methodology, particularly in relation to the connections involving stiffeners in the extended section of the end-plates.
Using the fixable program ABAQUS, Ismail et al. [12] presented a three-dimensional FEM to examine the impact of different geometrical factors on the attitude and behavior of the connection. The recommended model considers material and geometrical nonlinearities, pretension force in the bolts, contact between adjacent surfaces, and initial flaws. The experimental calibration and analysis of the finite element results demonstrated that the numerical system was capable of simulating the general and specific attitudes of several types of bolted end-plate steel connections. The parametric analysis also analyzed the final behavior and attitude with adjustments to the bolt diameter, end-plate thickness, column stiffener length, and rib stiffener angle. The findings were examined and put to the test with regard to the mechanisms of failure, the evolution of the resistance, the starting stiffness, and the capacity for rotation.
The results of four full-scale beam-to-column deconstructable composite joint connectors with high-strength steel S690 flush end-plates (FEPs) were presented and discussed by Ataei et al. [13]. They investigated the structural behavior and attitude of the new model in conjunction with the application of post-inducted friction-grip bolted shear connectors for progressing deconstructable composite floors. The test results showed that the composite beam-to-column joints can bring forth the required ductility and strength in accordance with Eurocode 3 and Eurocode 4 specifications. Additionally, the model can be easily shared as a proof of theory at the conclusion of the framework’s service life.
In order to investigate the impact of minor-axis end-plate joints on the behavior of major-axis end-plate joints, as well as the interaction between two minor-axis end-plate joints, Costa et al. [14] conducted a study on the joint behavior of five different steel beam-to-column end-plate joint configurations. Due to the presence of diverse three-dimensional stress conditions inside the unstiffened web of the column, the sub-frames, including one to three beams, were occupied, therefore engaging in mechanical interactions with two or three main and minor axis joints. The assessment of the interactions was conducted by analyzing the M–Φ connections of the joints, connections, and column structure. The research revealed that the impact of minor-axis joints on the stiffness of major-axis joints in the column web under investigation was low. Additionally, the presence of two minor-axis joints resulted in a mutually reinforcing relationship, leading to increased strength and stiffness.
The study performed by Elflah et al. [15] included the implementation of comprehensive experiments on beam-to-column joints made of stainless steel. These junctions were then exposed to static monotonic loads. The assessed joint configurations included an attachment with one flush and one extended end-plate; two connections with top and seated cleats; and two connections with top, seated, and web cleats for single-sided beam-to-column couplings. Stainless steel Grade EN 1.4301 was used for all the connected and attached parts, including bolts, angle cleats, and end-plates. The entire M–Φ characteristics for every test were documented, and the experimentally determined stiffness and moment resistance for every joint were compared to the codified provisions of EN1993-1-8. The connections showed exceptional ductility and could withstand loads that were much higher than those predicted by the design requirements for joints made of carbon steel.
Gao et al. [16] studied the structural behavior of beam-to-column joints with double-extended end-plate connections both experimentally and numerically. Two stainless steel grades and a joint made of carbon steel grade Q345B were considered. The M–Φ curves were recorded, demonstrating the excellent ductility of the stainless steel joints. The ABAQUS software package was used to create advanced finite element models (FEMs, which were then tested against the test results. The initial rotational stiffness, plastic moment resistance, and rotation capability of the tested joints are used to determine the accuracy of the design code predictions. The current design requirements result in excessively conservative strength predictions for stainless steel joints, according to the findings, as they do not account for the substantial strain hardening and ductility of the material.
Saha et al. [17] performed a numerical analysis of a semi-rigid joint made of stainless steel subjected to monotonic loading. The study involved a top seat with a double-web angle beam-column connection. The constructed FEM was initially validated with experimental data using the ABAQUS/CAE FEA program. Subsequently, 13 models were developed to examine the effects of various geometric parameters on the M–Φ properties of the joint. In this study, the effects of the bolt number, bolt pretension loads, top and seat angle thicknesses, and web angle thickness were investigated. The ultimate moment capacity and initial stiffness were observed to improve when the top-seat angle and web angle thickness increased. However, the rotation slowed at the very end. The moment capacity was enhanced by adding more bolts to the junction between the beam flanges and the top-seat angles. However, the bolt pretension load had little to no effect on the M–Φ behavior of the joint. Future studies of a similar type can make use of the approach used in this study.
A combined experimental and numerical investigation of stainless-steel end-plate connectors was presented by Song et al. [18], with a focus on their final behavior and rotational capacity. Six connection specimens composed of austenitic and lean duplex stainless steels were examined during the experimental phase under monotonic loading. The tests were specifically designed to examine how the connections behave when subjected to substantial deformations on the verge of failure. It was found that the fractures of the stainless-steel bolts and end-plates were closely related to the rotation capacity. A sophisticated FEM suitable for fracture simulation was created during the numerical phase. Material tests for stainless-steel bolts and plates were used to calibrate the constitutive and fracture models that were implemented. The created FEM exhibited a good level of accuracy in forecasting the behavior of the tested connections on the verge of failure. Finally, in order to assess the moment resistance and rotational capacity of the stainless-steel end-plate connectors, physical testing and computational analyses were performed.
The aim of this research is to conduct some recent FEA using the ABAQUS software to validate the accuracy and reliability of the FEA by correlating the M–Φ curves from FEA and experimental results.
2 Application
2.1 Analysis model
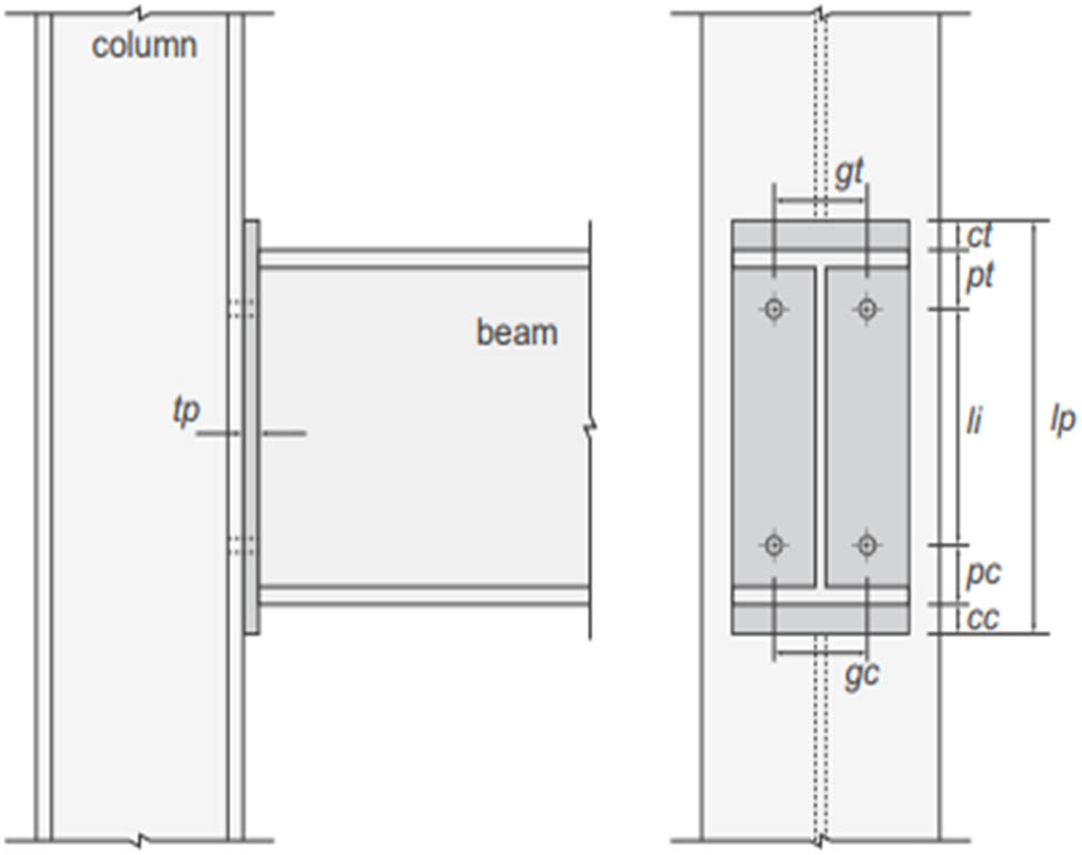
A published experimental work for a model of end-plate bolted connections between beam and column has been selected [19]. For this model, a 3D FEA has been carried out using ABAQUUS software. A connection is to be made between the FEM and the experimental results leading to a conclusion about the accuracy and reliability of the FEM.
2.2 Test arrangement
Ostrander [19] performed large-scale testing of beam-to-column FEP connections linked to a column flange to better understand the behavior of the connection. Four of the first group of specimens were simulated (similar column and beam sections and without column stiffeners). The steel sections of the columns, beams, and plates are listed in Table 1.
Test specimens detailing [20]
| Test specimen | 1 | 3 | 4 | 9 | |
|---|---|---|---|---|---|
| Column | W8 × 28 | W8 × 28 | W8 × 28 | W8 × 28 | |
| Beam | W10 × 21 | W10 × 21 | W10 × 21 | W10 × 21 | |
| Plate thickness (inch) | ½ | 3/8 | 1/4 | 3/4 | |
| Major parameters (inch) | ct | 0.500 | 0.500 | 0.500 | 0.500 |
| cc | 0.500 | 0.500 | 0.500 | 0.500 | |
| tp | 0.500 | 0.375 | 0.250 | 0.750 | |
| pt | 2.500 | 2.500 | 2.500 | 2.500 | |
| gt | 3.500 | 3.500 | 3.500 | 3.500 | |
| li | 5.000 | 5.000 | 5.000 | 5.000 | |
| gc | 3.500 | 3.500 | 3.500 | 3.500 | |
| pc | 2.500 | 2.500 | 2.500 | 2.500 | |
| Connection type | FEP connections | ||||
| Mode | All bolted without column stiffener | ||||
Figure 1 presents an assembled test specimen, which is obtained from Chen [20] Handbook. The dimensions shown were common to all the specimens tested in this program.
![Figure 1
Assembled specimen for J. R. Ostrander experiment model [20].](/document/doi/10.1515/eng-2022-0579/asset/graphic/j_eng-2022-0579_fig_001.jpg)
Assembled specimen for J. R. Ostrander experiment model [20].
Furthermore, the material properties of the columns, beams, plates, and bolts used in this study are listed in Tables 2 and 3.
Material properties of columns, beams, and plates [20]
| Yield strength,
|
Ultimate strength,
|
Modulus of elasticity,
|
|---|---|---|
| 45.4 | 70.3 | 30,000 |
Material properties of bolts [20]
| Fasteners | Yield strength,
|
Ultimate strength,
|
Modulus of elasticity,
|
|---|---|---|---|
| A325 (3/4 inch dia.); Standard holes – 13/16 inch | 92 | 120 | 30,000 |
2.3 Experimental test results
The experimental test results for each of the tested specimens are presented in Figure 2 by plotting the M–Φ curve. The connection rotation was determined using the difference between the connection rotation and the rotation of the beam.
![Figure 2
M–Φ for adopted test specimens (Ostrander, [19]).](/document/doi/10.1515/eng-2022-0579/asset/graphic/j_eng-2022-0579_fig_002.jpg)
M–Φ for adopted test specimens (Ostrander, [19]).
The M–Φ curves have revealed that the studied relationships started out linear and then turned out to be non-linear. The connections formed a stiff initial response, followed by significantly reduced stiffness in the second applied phase of choice. The inelastic deformation of the attachment components initiated the second step, as per the presented figures.
3 FEM
FEM is majorly considered an asset in computational mechanics in which it provides unmatched applicability and high accuracy in solving diverse challenges and problems in regards to engineering applications [21–29]. FEM plays its rule as an indispensable procedure that captures complicated interactions between assemblies, boundary conditions, and nonlinearities of the components in the context of analyzing the M–Φ behavior of end-plate bolted steel connections. Traditional analytical methods frequently rely on simplifications that may not adequately represent real-world conditions, hence introducing potential errors or uncertainties. In contrast to that, FEM permits a more detailed and nuanced analysis that resulted in drawings that closely resemble actual behavior. Consequently, employing FEMs in the analysis of these steel connections would not only improve the reliability of the results, but also substantially contribute to the optimization and safety of structural system design.
ABAQUS software was used for FEM and analysis of the experimental methodology. The accuracy and reliability of the FEM depend on the construction of a suitable mesh arrangement. Mesh discretization must strike a balance between the need for a fine mesh for an accurate stress distribution and the need for a fair analysis period. Using a fine mesh in high-stress areas and a coarser mesh in the rest of the region was the preferred choice. Figure 3 shows a model of the proposed experimental specimens.

FEM of test specimen: (a) assembled model, (b) meshing of column, (c) meshing of plate, (d) meshing of beam, (e) meshing of bolt, and (f) meshed model.
The columns, beams, plates, and bolts were modeled using 3D deformable solid shapes. The materials of the model were simulated using nonlinear material properties, and the categories and forms of the generated sections were solid and homogeneous, respectively.
Frictional and welded contacts are considered as interactions. Frictional contact is characterized by establishing interaction: surface-to-surface contact (general) for bolts-to-holes and plate-to-column contact, whereas welded contact is defined by the constraint tie for plate-to-beam welding.
An 8-node linear brick was adopted for meshing, and the geometric order was linear. Table 4 lists the number of elements.
Meshing detailing of the model
| Part | Number of elements |
|---|---|
| Plate | 2,436 |
| Beam | 656 |
| Column | 1,194 |
| Bolt | 600 |
Nonlinear effects (Nlgeom) were turned on in the phase module to account for the nonlinear effects of massive displacements. The following equation was used to measure the bolt pretension load:
The minimum tensile strength of the bolts was 92,000 psi, and the diameter of the bolt was 3/4 inch.
3.1 FEA results
Figure 4 shows the results of the FEA of the proposed experimental model.

FEM results: (a) results of analysis of the column, (b) results of analysis of the plate, (c) results of analysis of the beam, (d) results of analysis of the bolts, and (e) results of analysis of the assembled model.
Two sets of findings were discussed in this report. The data were divided into two categories: experimental test results and results from the FEA. The main purpose of the comparison was to ensure that the FEMs were reliable and trustworthy. As previously stated, FEMs were used to predict the deformation of the relationship. A more precise and figure-based validation is required to ensure the accuracy of FEMs. Figures 5 and 6 demonstrate how the FEM deformation and yield lines (stress concentration) are compared to the experimentally tested deformation.

Deformation of connection for test specimen and FEM.

Yield lines for test specimen and FEM.
3.2 Moment resistance
Figures 7–10 show the M–Φ curves of the ABAQUS FEM results. The findings of the M–Φ curve FEA were compared with the results of experimental experiments. The M–Φ curves produced by the FEA and experimental M-curves were quite similar.

M–Φ curves: (a) M–Φ for Test 1, (b) M–Φ for Test 3, (c) M–Φ for Test 4, and (d) M–Φ for Test 9.

M–Φ curve for Test 1 with different bolt pretension loads.

Deformation of connection for Test 1 with various bolt pretension loads (Tb): (a) deformation for Tb = 12 kip, (b) deformation for Tb = 20 kip, (c) deformation for Tb = 30 kip, and (d) deformation for Tb = 40 kip.

M–Φ curve for Test 1 with different yield stresses of column, beam, and plate.
The FEA findings were also compared with the experimental results for the moment resistance of the connection, as shown in Table 5. The analysis of the results revealed that the ratio was in the range of 0.86 to 0.88, indicating fair agreement. These findings indicate a high level of consensus.
Comparison of experimental and finite element ultimate moment resistance
| Test specimen | Ultimate moment,
|
Ratio of
|
|
|---|---|---|---|
|
|
|
||
| 1 | 538 | 461 | 0.86 |
| 3 | 486 | 421 | 0.87 |
| 4 | 264 | 233 | 0.88 |
| 9 | 600 | 523 | 0.87 |
4 Parametric study
To investigate the effect of various parameters on the relationship, a parametric analysis based on the test specimen (Test 1) proposed by Ostrander [19] was carried out. Because the effects of the column, beam, and plate thickness were studied by the aforementioned author, the influence of material properties and bolt rigidity was used in this study. The parameters considered were the bolt pretension load; yield stress of the bolts; and yield stress of the column, beam, and plate.
4.1 Bolt pretension load (Tb)
The effect of adjusting the bolt pretension load on the M–Φ curve is shown in Figure 8. The moment capacity of the connection increased as the bolt pretension load increased. The actions of the bolt pretension loads of 12, 20, and 30 kip are identical, with the exception of 40 kip. Figure 9(d) shows that for a bolt pretension load of 40 kip, the deformation of the connection increases, and the overall stiffness of the connection is also affected owing to the increased rigidity of the bolt in comparison with the connection materials.
4.2 Yield strength of column, beam, and plate
As shown in Figure 10, the increase in the yield stress of the column, beam, and plate materials leads to an increase in the moment capacity of the connection.
4.3 Yield stress of the bolts
The yield stress of the bolts had no considerable influence on the behavior of the connection, as shown in the M–Φ curve in Figure 11.

M–Φ curve for Test 1 with different yield stresses of bolts.
5 Conclusions
To analyze end-plate steel connections subjected to monotonic loads with a variety of types and features, as well as to investigate the effects of various parameters on the connection behavior, this study offers a three-dimensional FEM. The results of the study are summarized as follows:
Comparisons between the experimental and current FEM findings show that the current numerical model can mimic and forecast the behavior of bolted end-plates with a fair amount of precision. The M–Φ curves were included in the comparisons.
The parametric study’s findings show a strong increase in the connection’s moment ability with the bolt pretension load and yield stress of the column, beam, and plate materials. The bolts’ yield tension, on the other hand, has only a minor impact on the connection’s moment capacity.
The study relied on a reduced number of tests, with one section for columns and beams, and a joint type. To fully evaluate the three-dimensional nature of the steel behavior of joints from beam to column, additional tests and thorough parametric analysis utilizing the nonlinear FEM are necessary for future studies.
Acknowledgement
The authors would like to thank M.H. Ehsan for his support.
-
Funding information: The authors state no funding involved.
-
Conflict of interest: The authors do not have any conflicts of interest to disclose. All co-authors have visually perceived and concurred with the substance of this manuscript, and there are no pecuniary interests to disclose.
-
Data availability statement: All the data, models, and codes generated or used during the study appear in the submitted article.
References
[1] Yorgun C, Dalcı S, Altay GA. Finite element modeling of bolted steel connections designed by double channel. Comput Struct. 2004;82(29):2563–71, https://www.sciencedirect.com/science/article/pii/S0045794904001567.10.1016/j.compstruc.2004.04.003Suche in Google Scholar
[2] De Santis Y, Aloisio A, Gavrić I, Šušteršič I, Fragiacomo M. Timber-to-steel inclined screws connections with interlayers: Experimental investigation, analytical and finite element modelling. Eng Struct. 2023;292:116504, https://www.sciencedirect.com/science/article/pii/S0141029623009197.10.1016/j.engstruct.2023.116504Suche in Google Scholar
[3] Singh I, Stavroulakis GE, Drosopoulos GA. Impact of partially damaged passive protection on the fire response of bolted steel connections using finite element analysis. Case Stud Therm Eng. 2023;49:103225, https://www.sciencedirect.com/science/article/pii/S2214157X23005312.10.1016/j.csite.2023.103225Suche in Google Scholar
[4] Al-Kannoon MAA, Al-Thabhawee HW. Cyclic performance of moment connections with reduced beam sections using different cut-flange profiles. 2022;12(1):691–701. 10.1515/eng-2022-0354 Suche in Google Scholar
[5] Shi D, Huang H, Li N, Liu Y, Demartino C. Bolted steel to laminated timber and glubam connections: Axial behavior and finite-element modeling. Int J Mech Sci. 2023;252:108364, https://www.sciencedirect.com/science/article/pii/S0020740323002667.10.1016/j.ijmecsci.2023.108364Suche in Google Scholar
[6] Dabaon MA. Fundamental of steel design course and design tables. Tanta, Egypt: Tanta University; 2010.Suche in Google Scholar
[7] de Construção AP. Design of steel structures: Eurocode 3: Design of steel structures, Part 1-1: General rules and rules for buildings. USA: John Wiley & Sons; 2016.Suche in Google Scholar
[8] Dabaon MA, El-Boghdadi MH, El-Kasaby EA, Gerges NN. Early prediction of intimal stiffness of composite joints. In: ASCE-EGS. III Regional Conference on Civil Engineering Technology; 2002.Suche in Google Scholar
[9] Mohamadi-Shoore MR, Mofid M. New modeling for moment–rotation behavior of bolted endplate connections. Sci Iran. 2011;18(4):827–34, https://www.sciencedirect.com/science/article/pii/S1026309811001295.10.1016/j.scient.2011.07.015Suche in Google Scholar
[10] Shi Y, Shi G, Wang Y. Experimental and theoretical analysis of the moment–rotation behaviour of stiffened extended end-plate connections. J Constr Steel Res. 2007;63(9):1279–93, https://www.sciencedirect.com/science/article/pii/S0143974X06002410.10.1016/j.jcsr.2006.11.008Suche in Google Scholar
[11] Abidelah A, Bouchaïr A, Kerdal DE. Experimental and analytical behavior of bolted end-plate connections with or without stiffeners. J Constr Steel Res. 2012;76:13–27, https://www.sciencedirect.com/science/article/pii/S0143974X1200096X.10.1016/j.jcsr.2012.04.004Suche in Google Scholar
[12] Ismail RES, Fahmy AS, Khalifa AM, Mohamed YM. Numerical study on ultimate behaviour of bolted end-plate steel connections. Lat Am J Solids Struct. 2016;13:1–22.10.1590/1679-78251579Suche in Google Scholar
[13] Ataei A, Bradford MA, Valipour HR, Liu X. Experimental study of sustainable high strength steel flush end plate beam-to-column composite joints with deconstructable bolted shear connectors. Eng Struct. 2016;123:124–40, https://www.sciencedirect.com/science/article/pii/S0141029616302358.10.1016/j.engstruct.2016.05.035Suche in Google Scholar
[14] Costa R, Valdez J, Oliveira S, Simões da Silva L, Bayo E. Experimental behaviour of 3D end-plate beam-to-column bolted steel joints. Eng Struct. 2019;188:277–89, https://www.sciencedirect.com/science/article/pii/S0141029618331146.10.1016/j.engstruct.2019.03.017Suche in Google Scholar
[15] Elflah M, Theofanous M, Dirar S, Yuan H. Behaviour of stainless steel beam-to-column joints — Part 1: Experimental investigation. J Constr Steel Res. 2019;152:183–93, https://www.sciencedirect.com/science/article/pii/S0143974X17311471.10.1016/j.jcsr.2018.02.040Suche in Google Scholar
[16] Gao JD, Yuan HX, Du XX, Hu XB, Theofanous M. Structural behaviour of stainless steel double extended end-plate beam-to-column joints under monotonic loading. Thin-Walled Struct. 2020;151:106743. https://www.sciencedirect.com/science/article/pii/S0263823120301956.10.1016/j.tws.2020.106743Suche in Google Scholar
[17] Saha SS, Kawshiq ASMKZ, Ahmed S. Numerical study of the behaviour of stainless steel semi-rigid joints. 6th International Conference on Civil Engineering for Sustainable Development, Khulna University of Engineering & Technology (KUET), Khulna, Bangladesh.Suche in Google Scholar
[18] Song Y, Uy B, Li D, Wang J. Ultimate behaviour and rotation capacity of stainless steel end-plate connections. Steel Composite Struct. 2022;42(4):569–90.Suche in Google Scholar
[19] Ostrander JR. An experimental investigation of end plate connections. Doctoral dissertation. University of Saskatchewan; 1970.Suche in Google Scholar
[20] Chen WF. Semi-rigid connections handbook. USA: J. Ross Publishing; 2011.Suche in Google Scholar
[21] Al-Haddad LA, Jaber AA. Influence of operationally consumed propellers on multirotor UAVs airworthiness: Finite element and experimental approach. IEEE Sens J. 2023;23(11):11738–45.10.1109/JSEN.2023.3267043Suche in Google Scholar
[22] Fattah MY, Al-Omari RR, Ali HA. Numerical simulation of the treatment of soil swelling using grid geocell columns. Slovak J Civ Eng. 2015;23(2):9–18. 10.1515/sjce-2015-0007.Suche in Google Scholar
[23] Fattah MY, Salim NM, Al-Shammary WT. Effect of embedment depth on response of machine foundation on saturated sand. Arab J Sci Eng. 2015;40(11):3075–98. 10.1007/s13369-015-1793-8.Suche in Google Scholar
[24] Fattah MY, Majeed QG. Finite element analysis of geogrid encased stone columns. Geotech Geol Eng. 2012;30(4):713–26. 10.1007/s10706-011-9488-8.Suche in Google Scholar
[25] Akram H, Hilal M, Fattah M. Numerical simulation of the effect of repeated load and temperature on the behavior of asphalt layers. Eng Technol J. 2022;40(5):769–78, https://etj.uotechnology.edu.iq/article_174578.html.10.30684/etj.2021.131187.1012Suche in Google Scholar
[26] Fattah Y, MJ, Hamood M, Amoori Abbas S. Simulation of behavior of plate on elastic foundation under impact load by the finite element method. Eng Technol J. 2013;31(19):44–58, https://etj.uotechnology.edu.iq/article_83729.html.10.30684/etj.31.19A.4Suche in Google Scholar
[27] Jaafar AA, Yussof MM, Azeez AA, Mezher TM, Ali Blash AA. The nonlinear analysis of reactive powder concrete effectiveness in shear for reinforced concrete deep beams. Open Eng. 2023;13(1):20220412. 10.1515/eng-2022-0412.Suche in Google Scholar
[28] Al-Haddad LA, Jaber AA, Ibraheem L, Al-Haddad SA, Ibrahim NS, Abdulwahed FM. Enhancing wind tunnel computational simulations of finite element analysis using machine learning-based algorithms. Eng Technol J. 2023;42(1):1–9. https://etj.uotechnology.edu.iq/article_181030.html.10.30684/etj.2023.142873.1552Suche in Google Scholar
[29] Al-Haddad LA, Giernacki W, Shandookh AA, Jaber AA, Puchalski R. Vibration signal processing for multirotor UAVs fault diagnosis: Filtering or multiresolution analysis? Eksploatacja i Niezawodność – Maint Reliab. 2023;26(1). 10.17531/ein/176318.Suche in Google Scholar
© 2024 the author(s), published by De Gruyter
This work is licensed under the Creative Commons Attribution 4.0 International License.
Artikel in diesem Heft
- Regular Articles
- Methodology of automated quality management
- Influence of vibratory conveyor design parameters on the trough motion and the self-synchronization of inertial vibrators
- Application of finite element method in industrial design, example of an electric motorcycle design project
- Correlative evaluation of the corrosion resilience and passivation properties of zinc and aluminum alloys in neutral chloride and acid-chloride solutions
- Will COVID “encourage” B2B and data exchange engineering in logistic firms?
- Influence of unsupported sleepers on flange climb derailment of two freight wagons
- A hybrid detection algorithm for 5G OTFS waveform for 64 and 256 QAM with Rayleigh and Rician channels
- Effect of short heat treatment on mechanical properties and shape memory properties of Cu–Al–Ni shape memory alloy
- Exploring the potential of ammonia and hydrogen as alternative fuels for transportation
- Impact of insulation on energy consumption and CO2 emissions in high-rise commercial buildings at various climate zones
- Advanced autopilot design with extremum-seeking control for aircraft control
- Adaptive multidimensional trust-based recommendation model for peer to peer applications
- Effects of CFRP sheets on the flexural behavior of high-strength concrete beam
- Enhancing urban sustainability through industrial synergy: A multidisciplinary framework for integrating sustainable industrial practices within urban settings – The case of Hamadan industrial city
- Advanced vibrant controller results of an energetic framework structure
- Application of the Taguchi method and RSM for process parameter optimization in AWSJ machining of CFRP composite-based orthopedic implants
- Improved correlation of soil modulus with SPT N values
- Technologies for high-temperature batch annealing of grain-oriented electrical steel: An overview
- Assessing the need for the adoption of digitalization in Indian small and medium enterprises
- A non-ideal hybridization issue for vertical TFET-based dielectric-modulated biosensor
- Optimizing data retrieval for enhanced data integrity verification in cloud environments
- Performance analysis of nonlinear crosstalk of WDM systems using modulation schemes criteria
- Nonlinear finite-element analysis of RC beams with various opening near supports
- Thermal analysis of Fe3O4–Cu/water over a cone: a fractional Maxwell model
- Radial–axial runner blade design using the coordinate slice technique
- Theoretical and experimental comparison between straight and curved continuous box girders
- Effect of the reinforcement ratio on the mechanical behaviour of textile-reinforced concrete composite: Experiment and numerical modeling
- Experimental and numerical investigation on composite beam–column joint connection behavior using different types of connection schemes
- Enhanced performance and robustness in anti-lock brake systems using barrier function-based integral sliding mode control
- Evaluation of the creep strength of samples produced by fused deposition modeling
- A combined feedforward-feedback controller design for nonlinear systems
- Effect of adjacent structures on footing settlement for different multi-building arrangements
- Analyzing the impact of curved tracks on wheel flange thickness reduction in railway systems
- Review Articles
- Mechanical and smart properties of cement nanocomposites containing nanomaterials: A brief review
- Applications of nanotechnology and nanoproduction techniques
- Relationship between indoor environmental quality and guests’ comfort and satisfaction at green hotels: A comprehensive review
- Communication
- Techniques to mitigate the admission of radon inside buildings
- Erratum
- Erratum to “Effect of short heat treatment on mechanical properties and shape memory properties of Cu–Al–Ni shape memory alloy”
- Special Issue: AESMT-3 - Part II
- Integrated fuzzy logic and multicriteria decision model methods for selecting suitable sites for wastewater treatment plant: A case study in the center of Basrah, Iraq
- Physical and mechanical response of porous metals composites with nano-natural additives
- Special Issue: AESMT-4 - Part II
- New recycling method of lubricant oil and the effect on the viscosity and viscous shear as an environmentally friendly
- Identify the effect of Fe2O3 nanoparticles on mechanical and microstructural characteristics of aluminum matrix composite produced by powder metallurgy technique
- Static behavior of piled raft foundation in clay
- Ultra-low-power CMOS ring oscillator with minimum power consumption of 2.9 pW using low-voltage biasing technique
- Using ANN for well type identifying and increasing production from Sa’di formation of Halfaya oil field – Iraq
- Optimizing the performance of concrete tiles using nano-papyrus and carbon fibers
- Special Issue: AESMT-5 - Part II
- Comparative the effect of distribution transformer coil shape on electromagnetic forces and their distribution using the FEM
- The complex of Weyl module in free characteristic in the event of a partition (7,5,3)
- Restrained captive domination number
- Experimental study of improving hot mix asphalt reinforced with carbon fibers
- Asphalt binder modified with recycled tyre rubber
- Thermal performance of radiant floor cooling with phase change material for energy-efficient buildings
- Surveying the prediction of risks in cryptocurrency investments using recurrent neural networks
- A deep reinforcement learning framework to modify LQR for an active vibration control applied to 2D building models
- Evaluation of mechanically stabilized earth retaining walls for different soil–structure interaction methods: A review
- Assessment of heat transfer in a triangular duct with different configurations of ribs using computational fluid dynamics
- Sulfate removal from wastewater by using waste material as an adsorbent
- Experimental investigation on strengthening lap joints subjected to bending in glulam timber beams using CFRP sheets
- A study of the vibrations of a rotor bearing suspended by a hybrid spring system of shape memory alloys
- Stability analysis of Hub dam under rapid drawdown
- Developing ANFIS-FMEA model for assessment and prioritization of potential trouble factors in Iraqi building projects
- Numerical and experimental comparison study of piled raft foundation
- Effect of asphalt modified with waste engine oil on the durability properties of hot asphalt mixtures with reclaimed asphalt pavement
- Hydraulic model for flood inundation in Diyala River Basin using HEC-RAS, PMP, and neural network
- Numerical study on discharge capacity of piano key side weir with various ratios of the crest length to the width
- The optimal allocation of thyristor-controlled series compensators for enhancement HVAC transmission lines Iraqi super grid by using seeker optimization algorithm
- Numerical and experimental study of the impact on aerodynamic characteristics of the NACA0012 airfoil
- Effect of nano-TiO2 on physical and rheological properties of asphalt cement
- Performance evolution of novel palm leaf powder used for enhancing hot mix asphalt
- Performance analysis, evaluation, and improvement of selected unsignalized intersection using SIDRA software – Case study
- Flexural behavior of RC beams externally reinforced with CFRP composites using various strategies
- Influence of fiber types on the properties of the artificial cold-bonded lightweight aggregates
- Experimental investigation of RC beams strengthened with externally bonded BFRP composites
- Generalized RKM methods for solving fifth-order quasi-linear fractional partial differential equation
- An experimental and numerical study investigating sediment transport position in the bed of sewer pipes in Karbala
- Role of individual component failure in the performance of a 1-out-of-3 cold standby system: A Markov model approach
- Implementation for the cases (5, 4) and (5, 4)/(2, 0)
- Center group actions and related concepts
- Experimental investigation of the effect of horizontal construction joints on the behavior of deep beams
- Deletion of a vertex in even sum domination
- Deep learning techniques in concrete powder mix designing
- Effect of loading type in concrete deep beam with strut reinforcement
- Studying the effect of using CFRP warping on strength of husk rice concrete columns
- Parametric analysis of the influence of climatic factors on the formation of traditional buildings in the city of Al Najaf
- Suitability location for landfill using a fuzzy-GIS model: A case study in Hillah, Iraq
- Hybrid approach for cost estimation of sustainable building projects using artificial neural networks
- Assessment of indirect tensile stress and tensile–strength ratio and creep compliance in HMA mixes with micro-silica and PMB
- Density functional theory to study stopping power of proton in water, lung, bladder, and intestine
- A review of single flow, flow boiling, and coating microchannel studies
- Effect of GFRP bar length on the flexural behavior of hybrid concrete beams strengthened with NSM bars
- Exploring the impact of parameters on flow boiling heat transfer in microchannels and coated microtubes: A comprehensive review
- Crumb rubber modification for enhanced rutting resistance in asphalt mixtures
- Special Issue: AESMT-6
- Design of a new sorting colors system based on PLC, TIA portal, and factory I/O programs
- Forecasting empirical formula for suspended sediment load prediction at upstream of Al-Kufa barrage, Kufa City, Iraq
- Optimization and characterization of sustainable geopolymer mortars based on palygorskite clay, water glass, and sodium hydroxide
- Sediment transport modelling upstream of Al Kufa Barrage
- Study of energy loss, range, and stopping time for proton in germanium and copper materials
- Effect of internal and external recycle ratios on the nutrient removal efficiency of anaerobic/anoxic/oxic (VIP) wastewater treatment plant
- Enhancing structural behaviour of polypropylene fibre concrete columns longitudinally reinforced with fibreglass bars
- Sustainable road paving: Enhancing concrete paver blocks with zeolite-enhanced cement
- Evaluation of the operational performance of Karbala waste water treatment plant under variable flow using GPS-X model
- Design and simulation of photonic crystal fiber for highly sensitive chemical sensing applications
- Optimization and design of a new column sequencing for crude oil distillation at Basrah refinery
- Inductive 3D numerical modelling of the tibia bone using MRI to examine von Mises stress and overall deformation
- An image encryption method based on modified elliptic curve Diffie-Hellman key exchange protocol and Hill Cipher
- Experimental investigation of generating superheated steam using a parabolic dish with a cylindrical cavity receiver: A case study
- Effect of surface roughness on the interface behavior of clayey soils
- Investigated of the optical properties for SiO2 by using Lorentz model
- Measurements of induced vibrations due to steel pipe pile driving in Al-Fao soil: Effect of partial end closure
- Experimental and numerical studies of ballistic resistance of hybrid sandwich composite body armor
- Evaluation of clay layer presence on shallow foundation settlement in dry sand under an earthquake
- Optimal design of mechanical performances of asphalt mixtures comprising nano-clay additives
- Advancing seismic performance: Isolators, TMDs, and multi-level strategies in reinforced concrete buildings
- Predicted evaporation in Basrah using artificial neural networks
- Energy management system for a small town to enhance quality of life
- Numerical study on entropy minimization in pipes with helical airfoil and CuO nanoparticle integration
- Equations and methodologies of inlet drainage system discharge coefficients: A review
- Thermal buckling analysis for hybrid and composite laminated plate by using new displacement function
- Investigation into the mechanical and thermal properties of lightweight mortar using commercial beads or recycled expanded polystyrene
- Experimental and theoretical analysis of single-jet column and concrete column using double-jet grouting technique applied at Al-Rashdia site
- The impact of incorporating waste materials on the mechanical and physical characteristics of tile adhesive materials
- Seismic resilience: Innovations in structural engineering for earthquake-prone areas
- Automatic human identification using fingerprint images based on Gabor filter and SIFT features fusion
- Performance of GRKM-method for solving classes of ordinary and partial differential equations of sixth-orders
- Visible light-boosted photodegradation activity of Ag–AgVO3/Zn0.5Mn0.5Fe2O4 supported heterojunctions for effective degradation of organic contaminates
- Production of sustainable concrete with treated cement kiln dust and iron slag waste aggregate
- Key effects on the structural behavior of fiber-reinforced lightweight concrete-ribbed slabs: A review
- A comparative analysis of the energy dissipation efficiency of various piano key weir types
- Special Issue: Transport 2022 - Part II
- Variability in road surface temperature in urban road network – A case study making use of mobile measurements
- Special Issue: BCEE5-2023
- Evaluation of reclaimed asphalt mixtures rejuvenated with waste engine oil to resist rutting deformation
- Assessment of potential resistance to moisture damage and fatigue cracks of asphalt mixture modified with ground granulated blast furnace slag
- Investigating seismic response in adjacent structures: A study on the impact of buildings’ orientation and distance considering soil–structure interaction
- Improvement of porosity of mortar using polyethylene glycol pre-polymer-impregnated mortar
- Three-dimensional analysis of steel beam-column bolted connections
- Assessment of agricultural drought in Iraq employing Landsat and MODIS imagery
- Performance evaluation of grouted porous asphalt concrete
- Optimization of local modified metakaolin-based geopolymer concrete by Taguchi method
- Effect of waste tire products on some characteristics of roller-compacted concrete
- Studying the lateral displacement of retaining wall supporting sandy soil under dynamic loads
- Seismic performance evaluation of concrete buttress dram (Dynamic linear analysis)
- Behavior of soil reinforced with micropiles
- Possibility of production high strength lightweight concrete containing organic waste aggregate and recycled steel fibers
- An investigation of self-sensing and mechanical properties of smart engineered cementitious composites reinforced with functional materials
- Forecasting changes in precipitation and temperatures of a regional watershed in Northern Iraq using LARS-WG model
- Experimental investigation of dynamic soil properties for modeling energy-absorbing layers
- Numerical investigation of the effect of longitudinal steel reinforcement ratio on the ductility of concrete beams
- An experimental study on the tensile properties of reinforced asphalt pavement
- Self-sensing behavior of hot asphalt mixture with steel fiber-based additive
- Behavior of ultra-high-performance concrete deep beams reinforced by basalt fibers
- Optimizing asphalt binder performance with various PET types
- Investigation of the hydraulic characteristics and homogeneity of the microstructure of the air voids in the sustainable rigid pavement
- Enhanced biogas production from municipal solid waste via digestion with cow manure: A case study
- Special Issue: AESMT-7 - Part I
- Preparation and investigation of cobalt nanoparticles by laser ablation: Structure, linear, and nonlinear optical properties
- Seismic analysis of RC building with plan irregularity in Baghdad/Iraq to obtain the optimal behavior
- The effect of urban environment on large-scale path loss model’s main parameters for mmWave 5G mobile network in Iraq
- Formatting a questionnaire for the quality control of river bank roads
- Vibration suppression of smart composite beam using model predictive controller
- Machine learning-based compressive strength estimation in nanomaterial-modified lightweight concrete
- In-depth analysis of critical factors affecting Iraqi construction projects performance
- Behavior of container berth structure under the influence of environmental and operational loads
- Energy absorption and impact response of ballistic resistance laminate
- Effect of water-absorbent polymer balls in internal curing on punching shear behavior of bubble slabs
- Effect of surface roughness on interface shear strength parameters of sandy soils
- Evaluating the interaction for embedded H-steel section in normal concrete under monotonic and repeated loads
- Estimation of the settlement of pile head using ANN and multivariate linear regression based on the results of load transfer method
- Enhancing communication: Deep learning for Arabic sign language translation
- A review of recent studies of both heat pipe and evaporative cooling in passive heat recovery
- Effect of nano-silica on the mechanical properties of LWC
- An experimental study of some mechanical properties and absorption for polymer-modified cement mortar modified with superplasticizer
- Digital beamforming enhancement with LSTM-based deep learning for millimeter wave transmission
- Developing an efficient planning process for heritage buildings maintenance in Iraq
- Design and optimization of two-stage controller for three-phase multi-converter/multi-machine electric vehicle
- Evaluation of microstructure and mechanical properties of Al1050/Al2O3/Gr composite processed by forming operation ECAP
- Calculations of mass stopping power and range of protons in organic compounds (CH3OH, CH2O, and CO2) at energy range of 0.01–1,000 MeV
- Investigation of in vitro behavior of composite coating hydroxyapatite-nano silver on 316L stainless steel substrate by electrophoretic technic for biomedical tools
- A review: Enhancing tribological properties of journal bearings composite materials
- Improvements in the randomness and security of digital currency using the photon sponge hash function through Maiorana–McFarland S-box replacement
- Design a new scheme for image security using a deep learning technique of hierarchical parameters
- Special Issue: ICES 2023
- Comparative geotechnical analysis for ultimate bearing capacity of precast concrete piles using cone resistance measurements
- Visualizing sustainable rainwater harvesting: A case study of Karbala Province
- Geogrid reinforcement for improving bearing capacity and stability of square foundations
- Evaluation of the effluent concentrations of Karbala wastewater treatment plant using reliability analysis
- Adsorbent made with inexpensive, local resources
- Effect of drain pipes on seepage and slope stability through a zoned earth dam
- Sediment accumulation in an 8 inch sewer pipe for a sample of various particles obtained from the streets of Karbala city, Iraq
- Special Issue: IETAS 2024 - Part I
- Analyzing the impact of transfer learning on explanation accuracy in deep learning-based ECG recognition systems
- Effect of scale factor on the dynamic response of frame foundations
- Improving multi-object detection and tracking with deep learning, DeepSORT, and frame cancellation techniques
- The impact of using prestressed CFRP bars on the development of flexural strength
- Assessment of surface hardness and impact strength of denture base resins reinforced with silver–titanium dioxide and silver–zirconium dioxide nanoparticles: In vitro study
- A data augmentation approach to enhance breast cancer detection using generative adversarial and artificial neural networks
- Modification of the 5D Lorenz chaotic map with fuzzy numbers for video encryption in cloud computing
- Special Issue: 51st KKBN - Part I
- Evaluation of static bending caused damage of glass-fiber composite structure using terahertz inspection
Artikel in diesem Heft
- Regular Articles
- Methodology of automated quality management
- Influence of vibratory conveyor design parameters on the trough motion and the self-synchronization of inertial vibrators
- Application of finite element method in industrial design, example of an electric motorcycle design project
- Correlative evaluation of the corrosion resilience and passivation properties of zinc and aluminum alloys in neutral chloride and acid-chloride solutions
- Will COVID “encourage” B2B and data exchange engineering in logistic firms?
- Influence of unsupported sleepers on flange climb derailment of two freight wagons
- A hybrid detection algorithm for 5G OTFS waveform for 64 and 256 QAM with Rayleigh and Rician channels
- Effect of short heat treatment on mechanical properties and shape memory properties of Cu–Al–Ni shape memory alloy
- Exploring the potential of ammonia and hydrogen as alternative fuels for transportation
- Impact of insulation on energy consumption and CO2 emissions in high-rise commercial buildings at various climate zones
- Advanced autopilot design with extremum-seeking control for aircraft control
- Adaptive multidimensional trust-based recommendation model for peer to peer applications
- Effects of CFRP sheets on the flexural behavior of high-strength concrete beam
- Enhancing urban sustainability through industrial synergy: A multidisciplinary framework for integrating sustainable industrial practices within urban settings – The case of Hamadan industrial city
- Advanced vibrant controller results of an energetic framework structure
- Application of the Taguchi method and RSM for process parameter optimization in AWSJ machining of CFRP composite-based orthopedic implants
- Improved correlation of soil modulus with SPT N values
- Technologies for high-temperature batch annealing of grain-oriented electrical steel: An overview
- Assessing the need for the adoption of digitalization in Indian small and medium enterprises
- A non-ideal hybridization issue for vertical TFET-based dielectric-modulated biosensor
- Optimizing data retrieval for enhanced data integrity verification in cloud environments
- Performance analysis of nonlinear crosstalk of WDM systems using modulation schemes criteria
- Nonlinear finite-element analysis of RC beams with various opening near supports
- Thermal analysis of Fe3O4–Cu/water over a cone: a fractional Maxwell model
- Radial–axial runner blade design using the coordinate slice technique
- Theoretical and experimental comparison between straight and curved continuous box girders
- Effect of the reinforcement ratio on the mechanical behaviour of textile-reinforced concrete composite: Experiment and numerical modeling
- Experimental and numerical investigation on composite beam–column joint connection behavior using different types of connection schemes
- Enhanced performance and robustness in anti-lock brake systems using barrier function-based integral sliding mode control
- Evaluation of the creep strength of samples produced by fused deposition modeling
- A combined feedforward-feedback controller design for nonlinear systems
- Effect of adjacent structures on footing settlement for different multi-building arrangements
- Analyzing the impact of curved tracks on wheel flange thickness reduction in railway systems
- Review Articles
- Mechanical and smart properties of cement nanocomposites containing nanomaterials: A brief review
- Applications of nanotechnology and nanoproduction techniques
- Relationship between indoor environmental quality and guests’ comfort and satisfaction at green hotels: A comprehensive review
- Communication
- Techniques to mitigate the admission of radon inside buildings
- Erratum
- Erratum to “Effect of short heat treatment on mechanical properties and shape memory properties of Cu–Al–Ni shape memory alloy”
- Special Issue: AESMT-3 - Part II
- Integrated fuzzy logic and multicriteria decision model methods for selecting suitable sites for wastewater treatment plant: A case study in the center of Basrah, Iraq
- Physical and mechanical response of porous metals composites with nano-natural additives
- Special Issue: AESMT-4 - Part II
- New recycling method of lubricant oil and the effect on the viscosity and viscous shear as an environmentally friendly
- Identify the effect of Fe2O3 nanoparticles on mechanical and microstructural characteristics of aluminum matrix composite produced by powder metallurgy technique
- Static behavior of piled raft foundation in clay
- Ultra-low-power CMOS ring oscillator with minimum power consumption of 2.9 pW using low-voltage biasing technique
- Using ANN for well type identifying and increasing production from Sa’di formation of Halfaya oil field – Iraq
- Optimizing the performance of concrete tiles using nano-papyrus and carbon fibers
- Special Issue: AESMT-5 - Part II
- Comparative the effect of distribution transformer coil shape on electromagnetic forces and their distribution using the FEM
- The complex of Weyl module in free characteristic in the event of a partition (7,5,3)
- Restrained captive domination number
- Experimental study of improving hot mix asphalt reinforced with carbon fibers
- Asphalt binder modified with recycled tyre rubber
- Thermal performance of radiant floor cooling with phase change material for energy-efficient buildings
- Surveying the prediction of risks in cryptocurrency investments using recurrent neural networks
- A deep reinforcement learning framework to modify LQR for an active vibration control applied to 2D building models
- Evaluation of mechanically stabilized earth retaining walls for different soil–structure interaction methods: A review
- Assessment of heat transfer in a triangular duct with different configurations of ribs using computational fluid dynamics
- Sulfate removal from wastewater by using waste material as an adsorbent
- Experimental investigation on strengthening lap joints subjected to bending in glulam timber beams using CFRP sheets
- A study of the vibrations of a rotor bearing suspended by a hybrid spring system of shape memory alloys
- Stability analysis of Hub dam under rapid drawdown
- Developing ANFIS-FMEA model for assessment and prioritization of potential trouble factors in Iraqi building projects
- Numerical and experimental comparison study of piled raft foundation
- Effect of asphalt modified with waste engine oil on the durability properties of hot asphalt mixtures with reclaimed asphalt pavement
- Hydraulic model for flood inundation in Diyala River Basin using HEC-RAS, PMP, and neural network
- Numerical study on discharge capacity of piano key side weir with various ratios of the crest length to the width
- The optimal allocation of thyristor-controlled series compensators for enhancement HVAC transmission lines Iraqi super grid by using seeker optimization algorithm
- Numerical and experimental study of the impact on aerodynamic characteristics of the NACA0012 airfoil
- Effect of nano-TiO2 on physical and rheological properties of asphalt cement
- Performance evolution of novel palm leaf powder used for enhancing hot mix asphalt
- Performance analysis, evaluation, and improvement of selected unsignalized intersection using SIDRA software – Case study
- Flexural behavior of RC beams externally reinforced with CFRP composites using various strategies
- Influence of fiber types on the properties of the artificial cold-bonded lightweight aggregates
- Experimental investigation of RC beams strengthened with externally bonded BFRP composites
- Generalized RKM methods for solving fifth-order quasi-linear fractional partial differential equation
- An experimental and numerical study investigating sediment transport position in the bed of sewer pipes in Karbala
- Role of individual component failure in the performance of a 1-out-of-3 cold standby system: A Markov model approach
- Implementation for the cases (5, 4) and (5, 4)/(2, 0)
- Center group actions and related concepts
- Experimental investigation of the effect of horizontal construction joints on the behavior of deep beams
- Deletion of a vertex in even sum domination
- Deep learning techniques in concrete powder mix designing
- Effect of loading type in concrete deep beam with strut reinforcement
- Studying the effect of using CFRP warping on strength of husk rice concrete columns
- Parametric analysis of the influence of climatic factors on the formation of traditional buildings in the city of Al Najaf
- Suitability location for landfill using a fuzzy-GIS model: A case study in Hillah, Iraq
- Hybrid approach for cost estimation of sustainable building projects using artificial neural networks
- Assessment of indirect tensile stress and tensile–strength ratio and creep compliance in HMA mixes with micro-silica and PMB
- Density functional theory to study stopping power of proton in water, lung, bladder, and intestine
- A review of single flow, flow boiling, and coating microchannel studies
- Effect of GFRP bar length on the flexural behavior of hybrid concrete beams strengthened with NSM bars
- Exploring the impact of parameters on flow boiling heat transfer in microchannels and coated microtubes: A comprehensive review
- Crumb rubber modification for enhanced rutting resistance in asphalt mixtures
- Special Issue: AESMT-6
- Design of a new sorting colors system based on PLC, TIA portal, and factory I/O programs
- Forecasting empirical formula for suspended sediment load prediction at upstream of Al-Kufa barrage, Kufa City, Iraq
- Optimization and characterization of sustainable geopolymer mortars based on palygorskite clay, water glass, and sodium hydroxide
- Sediment transport modelling upstream of Al Kufa Barrage
- Study of energy loss, range, and stopping time for proton in germanium and copper materials
- Effect of internal and external recycle ratios on the nutrient removal efficiency of anaerobic/anoxic/oxic (VIP) wastewater treatment plant
- Enhancing structural behaviour of polypropylene fibre concrete columns longitudinally reinforced with fibreglass bars
- Sustainable road paving: Enhancing concrete paver blocks with zeolite-enhanced cement
- Evaluation of the operational performance of Karbala waste water treatment plant under variable flow using GPS-X model
- Design and simulation of photonic crystal fiber for highly sensitive chemical sensing applications
- Optimization and design of a new column sequencing for crude oil distillation at Basrah refinery
- Inductive 3D numerical modelling of the tibia bone using MRI to examine von Mises stress and overall deformation
- An image encryption method based on modified elliptic curve Diffie-Hellman key exchange protocol and Hill Cipher
- Experimental investigation of generating superheated steam using a parabolic dish with a cylindrical cavity receiver: A case study
- Effect of surface roughness on the interface behavior of clayey soils
- Investigated of the optical properties for SiO2 by using Lorentz model
- Measurements of induced vibrations due to steel pipe pile driving in Al-Fao soil: Effect of partial end closure
- Experimental and numerical studies of ballistic resistance of hybrid sandwich composite body armor
- Evaluation of clay layer presence on shallow foundation settlement in dry sand under an earthquake
- Optimal design of mechanical performances of asphalt mixtures comprising nano-clay additives
- Advancing seismic performance: Isolators, TMDs, and multi-level strategies in reinforced concrete buildings
- Predicted evaporation in Basrah using artificial neural networks
- Energy management system for a small town to enhance quality of life
- Numerical study on entropy minimization in pipes with helical airfoil and CuO nanoparticle integration
- Equations and methodologies of inlet drainage system discharge coefficients: A review
- Thermal buckling analysis for hybrid and composite laminated plate by using new displacement function
- Investigation into the mechanical and thermal properties of lightweight mortar using commercial beads or recycled expanded polystyrene
- Experimental and theoretical analysis of single-jet column and concrete column using double-jet grouting technique applied at Al-Rashdia site
- The impact of incorporating waste materials on the mechanical and physical characteristics of tile adhesive materials
- Seismic resilience: Innovations in structural engineering for earthquake-prone areas
- Automatic human identification using fingerprint images based on Gabor filter and SIFT features fusion
- Performance of GRKM-method for solving classes of ordinary and partial differential equations of sixth-orders
- Visible light-boosted photodegradation activity of Ag–AgVO3/Zn0.5Mn0.5Fe2O4 supported heterojunctions for effective degradation of organic contaminates
- Production of sustainable concrete with treated cement kiln dust and iron slag waste aggregate
- Key effects on the structural behavior of fiber-reinforced lightweight concrete-ribbed slabs: A review
- A comparative analysis of the energy dissipation efficiency of various piano key weir types
- Special Issue: Transport 2022 - Part II
- Variability in road surface temperature in urban road network – A case study making use of mobile measurements
- Special Issue: BCEE5-2023
- Evaluation of reclaimed asphalt mixtures rejuvenated with waste engine oil to resist rutting deformation
- Assessment of potential resistance to moisture damage and fatigue cracks of asphalt mixture modified with ground granulated blast furnace slag
- Investigating seismic response in adjacent structures: A study on the impact of buildings’ orientation and distance considering soil–structure interaction
- Improvement of porosity of mortar using polyethylene glycol pre-polymer-impregnated mortar
- Three-dimensional analysis of steel beam-column bolted connections
- Assessment of agricultural drought in Iraq employing Landsat and MODIS imagery
- Performance evaluation of grouted porous asphalt concrete
- Optimization of local modified metakaolin-based geopolymer concrete by Taguchi method
- Effect of waste tire products on some characteristics of roller-compacted concrete
- Studying the lateral displacement of retaining wall supporting sandy soil under dynamic loads
- Seismic performance evaluation of concrete buttress dram (Dynamic linear analysis)
- Behavior of soil reinforced with micropiles
- Possibility of production high strength lightweight concrete containing organic waste aggregate and recycled steel fibers
- An investigation of self-sensing and mechanical properties of smart engineered cementitious composites reinforced with functional materials
- Forecasting changes in precipitation and temperatures of a regional watershed in Northern Iraq using LARS-WG model
- Experimental investigation of dynamic soil properties for modeling energy-absorbing layers
- Numerical investigation of the effect of longitudinal steel reinforcement ratio on the ductility of concrete beams
- An experimental study on the tensile properties of reinforced asphalt pavement
- Self-sensing behavior of hot asphalt mixture with steel fiber-based additive
- Behavior of ultra-high-performance concrete deep beams reinforced by basalt fibers
- Optimizing asphalt binder performance with various PET types
- Investigation of the hydraulic characteristics and homogeneity of the microstructure of the air voids in the sustainable rigid pavement
- Enhanced biogas production from municipal solid waste via digestion with cow manure: A case study
- Special Issue: AESMT-7 - Part I
- Preparation and investigation of cobalt nanoparticles by laser ablation: Structure, linear, and nonlinear optical properties
- Seismic analysis of RC building with plan irregularity in Baghdad/Iraq to obtain the optimal behavior
- The effect of urban environment on large-scale path loss model’s main parameters for mmWave 5G mobile network in Iraq
- Formatting a questionnaire for the quality control of river bank roads
- Vibration suppression of smart composite beam using model predictive controller
- Machine learning-based compressive strength estimation in nanomaterial-modified lightweight concrete
- In-depth analysis of critical factors affecting Iraqi construction projects performance
- Behavior of container berth structure under the influence of environmental and operational loads
- Energy absorption and impact response of ballistic resistance laminate
- Effect of water-absorbent polymer balls in internal curing on punching shear behavior of bubble slabs
- Effect of surface roughness on interface shear strength parameters of sandy soils
- Evaluating the interaction for embedded H-steel section in normal concrete under monotonic and repeated loads
- Estimation of the settlement of pile head using ANN and multivariate linear regression based on the results of load transfer method
- Enhancing communication: Deep learning for Arabic sign language translation
- A review of recent studies of both heat pipe and evaporative cooling in passive heat recovery
- Effect of nano-silica on the mechanical properties of LWC
- An experimental study of some mechanical properties and absorption for polymer-modified cement mortar modified with superplasticizer
- Digital beamforming enhancement with LSTM-based deep learning for millimeter wave transmission
- Developing an efficient planning process for heritage buildings maintenance in Iraq
- Design and optimization of two-stage controller for three-phase multi-converter/multi-machine electric vehicle
- Evaluation of microstructure and mechanical properties of Al1050/Al2O3/Gr composite processed by forming operation ECAP
- Calculations of mass stopping power and range of protons in organic compounds (CH3OH, CH2O, and CO2) at energy range of 0.01–1,000 MeV
- Investigation of in vitro behavior of composite coating hydroxyapatite-nano silver on 316L stainless steel substrate by electrophoretic technic for biomedical tools
- A review: Enhancing tribological properties of journal bearings composite materials
- Improvements in the randomness and security of digital currency using the photon sponge hash function through Maiorana–McFarland S-box replacement
- Design a new scheme for image security using a deep learning technique of hierarchical parameters
- Special Issue: ICES 2023
- Comparative geotechnical analysis for ultimate bearing capacity of precast concrete piles using cone resistance measurements
- Visualizing sustainable rainwater harvesting: A case study of Karbala Province
- Geogrid reinforcement for improving bearing capacity and stability of square foundations
- Evaluation of the effluent concentrations of Karbala wastewater treatment plant using reliability analysis
- Adsorbent made with inexpensive, local resources
- Effect of drain pipes on seepage and slope stability through a zoned earth dam
- Sediment accumulation in an 8 inch sewer pipe for a sample of various particles obtained from the streets of Karbala city, Iraq
- Special Issue: IETAS 2024 - Part I
- Analyzing the impact of transfer learning on explanation accuracy in deep learning-based ECG recognition systems
- Effect of scale factor on the dynamic response of frame foundations
- Improving multi-object detection and tracking with deep learning, DeepSORT, and frame cancellation techniques
- The impact of using prestressed CFRP bars on the development of flexural strength
- Assessment of surface hardness and impact strength of denture base resins reinforced with silver–titanium dioxide and silver–zirconium dioxide nanoparticles: In vitro study
- A data augmentation approach to enhance breast cancer detection using generative adversarial and artificial neural networks
- Modification of the 5D Lorenz chaotic map with fuzzy numbers for video encryption in cloud computing
- Special Issue: 51st KKBN - Part I
- Evaluation of static bending caused damage of glass-fiber composite structure using terahertz inspection